Where Everyone, Human and Animal, Matters!
Home
Properties
Current Availability
Parking
List of Properties
Property Photos
Information
Applications
Sample Documents
Move Out Procedures
Utility Info
Contact Us
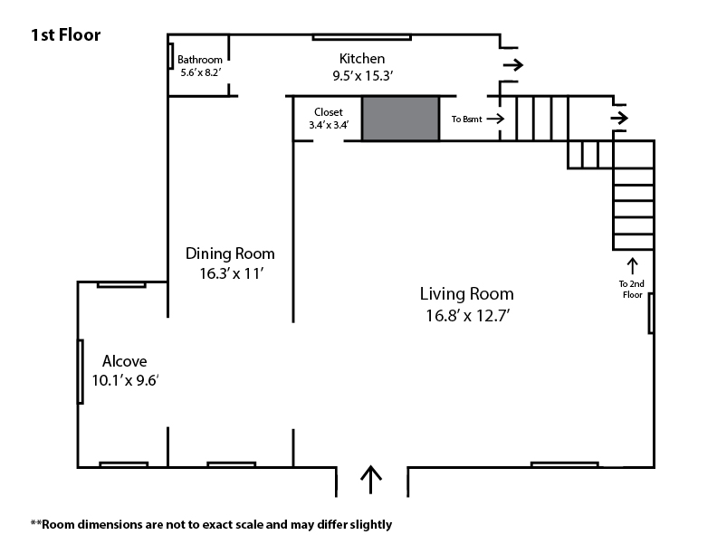
637 W Beaver Ave
**Click floor plan to see all floors**